studio w
  • projekte
  • studio
  • kontakt

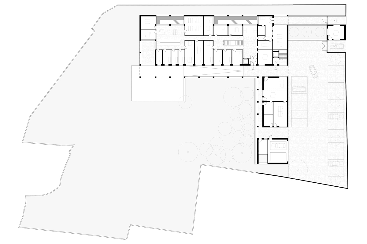
Projektwettbewerb Schweizerische Botschaft
Addis Abeba, Äthiopien


Standort:
Addis Abeba, Äthiopien

Bauherrschaft:
Bundesamt für Bauten und Logistik

Auftragsart:
Projektwettbewerb im offenen Verfahren

Architektur:
studio w

Massgeblich am Projekt beteiligt:

Bauleitung:

    1 2 3 4 5 6 7
  Previous   Next
studio w
projekte
büro
kontakt