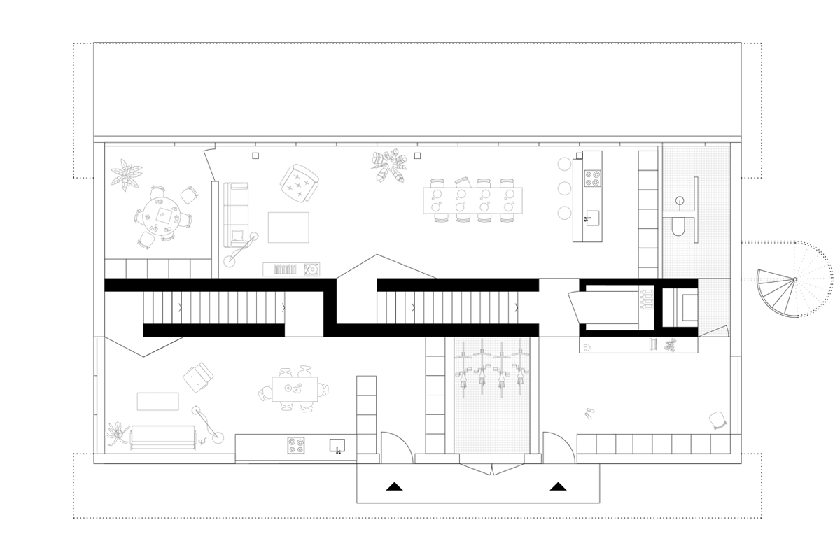
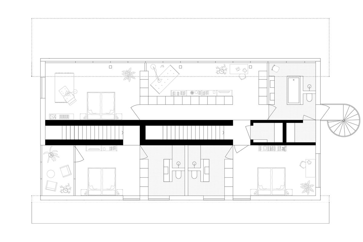
Studienauftrag, 1. Rang
Stadtweier Sempach, Parzelle 223 und 1323
                        
                        Standort:
Sempach
                        Bauherrschaft:
Lukas und Yolanda Duss Mabres
                        Auftragsart:
Studienauftrag
                        Architektur:
studio w und Gersbach Landschaftsarchitektur, Zürich
                        Massgeblich am Projekt beteiligt:
                        Bauleitung: