studio w
  • projekte
  • studio
  • kontakt

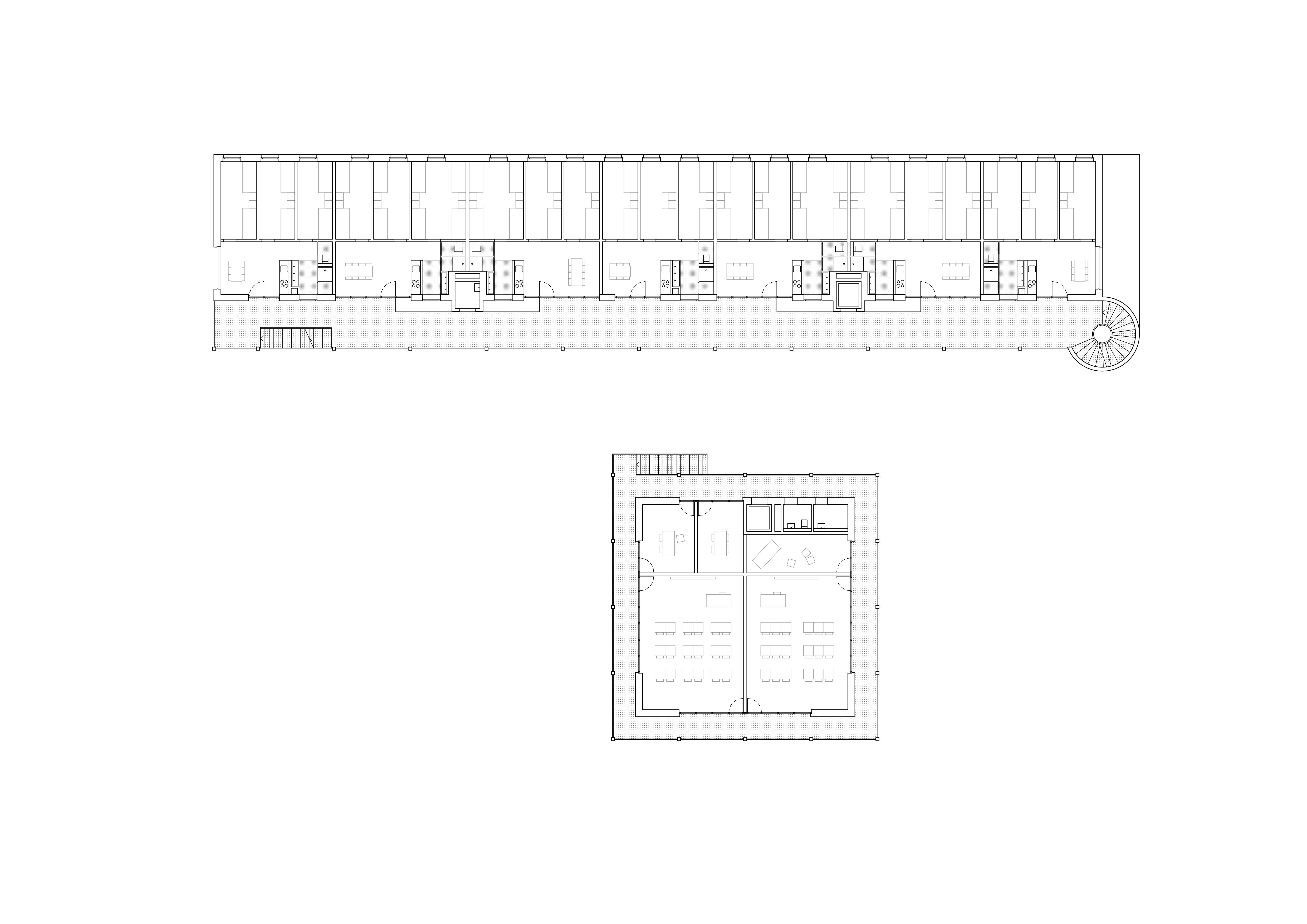
Offener Projektwettbewerb, 1. Rang
Ersatzneubau DSS, Steinhausen


Standort:
Steinhausen

Bauherrschaft:
Kanton Zug

Auftragsart:
Offener Projektwettbewerb

Architektur:
Kollektiv Juma und studio w, Gersbach Landschaftsarchitektur

Massgeblich am Projekt beteiligt:
ARCANUS Baumanagement, Gruner Berchtold Eicher Bauingenieure, Olos HLKS-Planer, Enerpeak Elektroplaner, BAKUS Bauphysik & Akustik, Emch+Berger Brandschutz, Visualisierungen Pascal Steinmann

Bauleitung:

    1 2 3 4 5 6 7
  Previous   Next
studio w
projekte
büro
kontakt